中古一戸建て

横浜市港南区上永谷5丁目 中古戸建

所在地:
神奈川県横浜市港南区上永谷五丁目
交通:
横浜市営ブルーライン 「上永谷」駅  徒歩10分 横浜市営ブルーライン 「下永谷」駅  徒歩11分 JR横須賀線 「東戸塚」駅  バス14分 「日限地蔵入口」 停歩4分
高台の閑静な住宅地!土地や投資用としてご検討可能!

スタッフのおすすめポイント

■1981年5月築 木造2階建て
■土地面積196.87㎡(59.55坪)
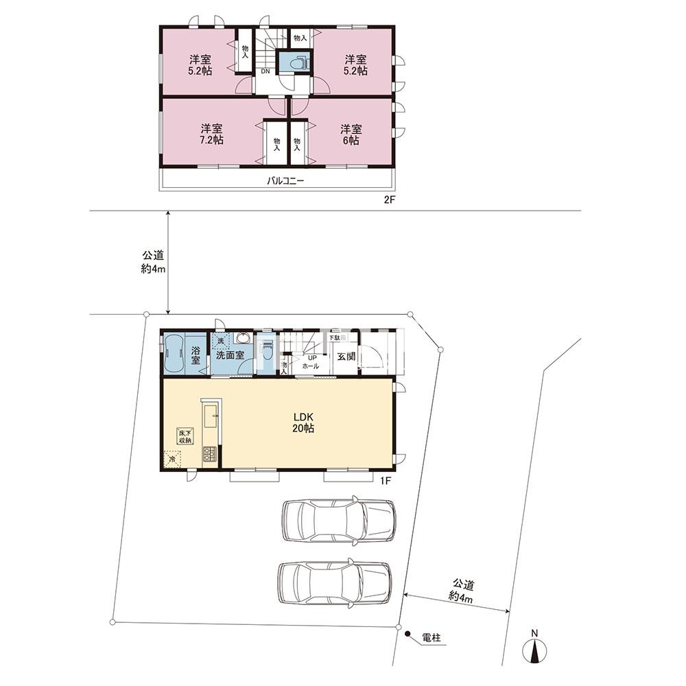
■建物面積132.48㎡ 間取5SLDK
■階段接道のためカースペースなし
■環状2号線へのアクセス良好!
■南西側ひらけているため日当り良好!
■小中学校徒歩12分圏内

■本物件南西側敷地は一部傾斜地となっています
■本物件は敷地一部が建築基準法にて定める接道要件を満たしておりません(一部1.96m)
そのため、建築物の建築及び現在の建物への増改築することが原則できません。
但し、一定の要件を満たし許可・認定申請において許可された場合は建物建築が許可されます。詳細はお問い合わせください。
お問い合わせはこちらから
三春情報センター上永谷店
0120-919-386 0120-919-386
『ミックナビを見て電話しました』とお伝えいただくとスムーズです!

公式LINE(チャット)でもお気軽に相談できます。
ぜひご利用ください!

公式LINE(チャット)でもお気軽に相談できます。
ぜひご利用ください!

物件概要

物件種別
中古戸建
物件名
横浜市港南区上永谷5丁目
価格
2,100万円
ローンシミュレーション
所在地
神奈川県横浜市港南区上永谷五丁目
横浜市港南区の物件一覧
交通
横浜市営ブルーライン 「上永谷」駅  徒歩10分 横浜市営ブルーライン 「下永谷」駅  徒歩11分 JR横須賀線 「東戸塚」駅  バス14分 「日限地蔵入口」 停歩4分 横浜市営ブルーライン「上永谷」駅の物件一覧 横浜市営ブルーライン「下永谷」駅の物件一覧 JR横須賀線「東戸塚」駅の物件一覧
間取り
5SLDK
階数
階数:2階建
構造
木造
築年月
1981年5月
土地面積
196.87 m²
土地条件
-
土地権利
所有権
建物面積
132.48 m²
その他費用
-
建物条件
接道
向き: 南西側  公道  道路幅約:7.5m  間口約:2.01m
セットバック
-
私道負担
-
地役権
-
用途地域
第一種低層住居専用地域
都市計画
市街化区域
建ぺい率
50%
容積率
80%
地目
宅地
駐車場
現況
空家
引渡し
設備
公営水道  本下水  都市ガス
その他
リフォーム(内装)
リフォーム(外装)
取引態様
仲介
学校区

永野小学校 永野小学校区の物件一覧

上永谷中学校 上永谷中学校区の物件一覧

法令上の制限
-
その他制限事項
-
坂道レベル
坂道レベル4
情報更新日
2026/01/24
次回更新予定日
2026/02/07
取引条件の有効期限
2026/04/24
※図面と現況が異なる場合は、現況優先とします。
※掲載物件は成約済・売却中止になる場合があります。
※成約の際は仲介手数料とこれにかかる消費税が必要です。(当社が売主の物件除く)
※価格は物件の代金総額を表示しており、消費税が課税される場合は税込価格です(1000円未満は切り上げ)。
※写真に写っている、またはパースやCG、間取り図に描かれている家具や車などは、特に記載がない場合、物件価格に含まれません。
※坂道レベルは、当社の測定方法によります。
※サービスルーム(納戸)とは、建築基準法で定める居室の基準に対して採光や通風が不足していたり、天井高が低かったりする部屋のことです。表記の際は、サービスルームの頭文字を取ってSと呼ばれたり、また英語で巣を意味するDENや納戸の頭文字を取ってNとして表記されることもあります。窓や収納が付いたサービスルーム(納戸)も多く実際の利用は、納戸としてではなく、書斎や個室に使われることも少なくありません。
お問い合わせはこちらから
三春情報センター上永谷店
0120-919-386 0120-919-386
『ミックナビを見て電話しました』とお伝えいただくとスムーズです!

公式LINE(チャット)でもお気軽に相談できます。
ぜひご利用ください!

公式LINE(チャット)でもお気軽に相談できます。
ぜひご利用ください!

ローンシミュレーション

この物件を購入した場合の、月々の支払い価格の一例です。

返済期間
金利
0.6%
ボーナス返済の割合
物件価格
2100万円
自己資金
万円
借入金額
万円
毎月の返済額
ボーナス月の返済額
  • ●実際の返済額とは諸条件によって異なります。目安としてご利用ください。
  • ●金利は返済期間を通して変わらないものとし、元利均等方式(元金と利息を合計した、毎月の返済額が同じになる)で計算しました。
  • ●ボーナス返済については、借入日とボーナス月の間隔によって、計算の結果が少し異なります。
お問い合わせ先
三春情報センター上永谷店
三春情報センター
上永谷店店舗紹介を見る
営業時間:9:30~18:30※曜日により異なる
定休日:不定休
※予告なく変更になる場合があります。
担当者 山田 悠貴 ヤマダ ユウキスタッフ紹介を見る
お電話でお問い合わせ 0120-919-386
0120-919-386 見学予約 お問い合わせ LINEで相談

この物件を見た人は
こんな物件も見ています。

お気に入り登録をしました。
お気に入り登録を解除しました。
お気に入り登録をしました。
お気に入り登録を解除しました。